Werkverzeichnis - Heute bis 2017
1/4
Waldbungalow, Berlin
053RÖB \ 2025
Neubau eines Bungalows mit ca. 185qm BGF, einfache & robuste Baukonstruktion
Architekt: Christopher Sitzler
Bauherr: privat
Bausumme: ca. 750.000 €
1/4
Altbauloft, Berlin
050PAU \ 2024
Loftausbau inkl. Tonstudio, Altbau
Architekt: Christopher Sitzler
Bauherr: privat
Bausumme: ca. 250.000 €
1/10
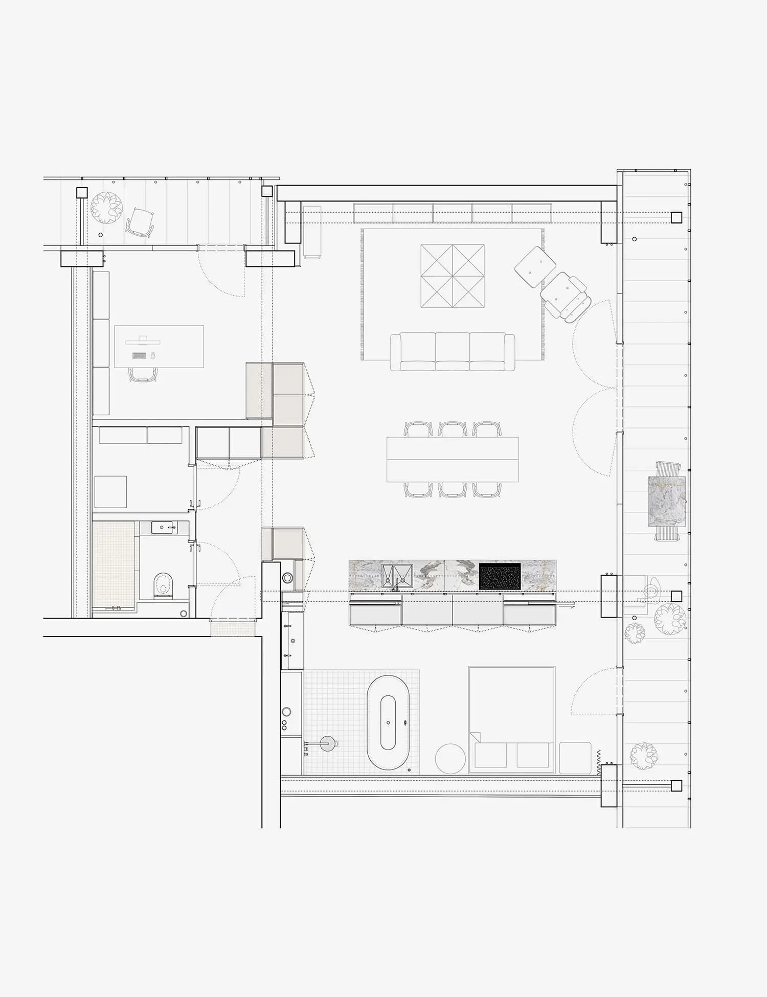
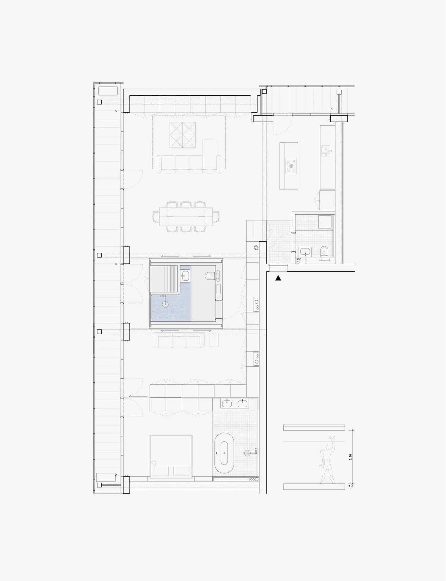
Whg. Prenzlauer Berg, Berlin
041BÖT \ 2024
Wohnungsumbau, Dachaufbau aus den 90ern
Architekt: Christopher Sitzler
Bauherr: privat
Bausumme: ca. 200.000 €
https://www.ad-magazin.de/artikel/bachelor-pad-umbau-offenes-bad-berlin
https://www.baunetz-id.de/projekte/offenes-wohnen-ueber-den-daechern
1/12
Büroumbau ng-voice, Hamburg
049WIL \ 2024
Ausbau und Ausstattung, Gewerbe
Architekt: Christopher Sitzler & Gizzem Cinar
Bauherr: ng-voice GmbH
Bausumme: ca. 350.000 €

Dachgeschoss, Berlin
060MOM \ 2026
Dachgeschossausbau, Innenausbau, Einbauten
Architekt: Christopher Sitzler
Bauherr: privat
Bausumme: ca. 200.000 €
1/9
Whg. Leipziger Straße, Berlin
043LEI \ 2024
Wohnungsumbau, Hochhaus
Architekt: Christopher Sitzler
Bauherr: privat
Bausumme: ca. 250.000 €
1/5
AD100 Germany
2024\2025\2026
AD100: Das sind die wichtigsten Kreativen des Jahres
Jedes Jahr kürt AD die wichtigsten Architekt:innen, Designer:innen und Interiordesigner:innen
Ernennung in den Jahren 2024, 2025 & 2026
https://www.ad-magazin.de/artikel/ad100-2026
https://www.ad-magazin.de/artikel/ad100-2025-deutsche-gestalterinnen

Sanierung einer Altbau Villa, Berlin
055MAR \ 2025
Sanierung einer Altbau Villa mit ca. 190qm, behutsame Freilegung und Restauration der historischen Bauelemente
Architekt: Christopher Sitzler
Bauherr: privat
Bausumme: ca. 350.000 €

Dachgeschoss Ackerstraße, Berlin
048ACK \ 2024
Dachgeschossausbau, Altbau
Architekt: Christopher Sitzler
Bauherr: privat
Bausumme: ca. 950.000 €
1/7
Whg. am Volkspark Friedrichshain, Berlin
042WIL \ 2024
Wohnungsumbau, Altbau
Architekt: Christopher Sitzler
Bauherr: privat
Bausumme: ca. 200.000 €
https://www.baunetz-id.de/stories/vom-eckkonflikt-zum-lieblingsraum

Whg. Oberbaumbrücke
047BEV \ 2024
Dachgeschossausbau, Neubau
Architekt: Christopher Sitzler
Bauherr: privat
Bausumme: ca. 300.000 €
1/9
Whg. Schmiedhof, Berlin
034SCH \ 2023
Umbau & Grundrissänderung einer Split-Level-Wohnung, sanierter Altbau
Architekt: Christopher Sitzler
Bauherr: privat
Bausumme: ca. 250.000 €
www.ad-magazin.de/artikel/umbau-berlin-schmiede-splitlevel-wohnung-modern
www.baunetz-id.de/projekte/gruen-gerahmte-wohnflaeche
www.yellowtrace.com.au/christopher-sitzler-industrial-apartment-renovation
1/2
Ausstattung Bürofläche, Berlin
038GRE \ 2022
Ausstattung & bauliche Anpassungen einer Bürofläche für ca. 100 Mitarbeiter, Neubau
Architekt: Christopher Sitzler
Bauherr: Popcore GmbH
Bausumme: ca. 250.000 €
1/6
Whg. Mühlenstraße, Berlin
033MUE \ 2022
Umbau & Ausstattung, Neubau
Architekt: Christopher Sitzler
Bauherr: privat
Bausumme: ca. 120.000 €
1/6
Whg. Wrangelkiez, Berlin
021REI \ 2021
Wohnungsumbau, Altbau
Architekt: Christopher Sitzler
Bauherr: privat
Bausumme: ca. 100.000 €
www.ad-magazin.de/artikel/umbau-altbauwohnung-berlin-kreuzberg
1/6
Whg. Leipziger Straße, Berlin
009LEI \ 2020
Wohnungsumbau, Hochhaus
Architekt: Christopher Sitzler
Bauherr: privat
Bausumme: ca. 200.000 €
www.ad-magazin.de/article/thirtysomething-christopher-sitzler
www.baunetz.de/meldungen/Meldungen-Wohnungsumbau/ChristopherSitzler

Whg. Helmholtzkiez, Berlin
029GRE \ 2021
Wohnungsoptimierung, Dachgeschoss
Architekt: Christopher Sitzler
Bauherr: privat
Bausumme: ca. 100.000 €
1/2
Whg. Strausberger Platz, Berlin
020STR \ 2021
Fertigstellung einer Altbauwohnung & Küchenplanung
Architekt: Christopher Sitzler
Bauherr: privat
Bausumme: ca. 30.000 €

Whg. Kollwitzkiez, Berlin
001KOL \ 2019
Wohnungsumbau, Altbau
Architekt: Christopher Sitzler
Bauherr: privat
Bausumme: ca. 130.000 €

Whg. Kastanienallee, Berlin
004KAS \ 2020
Grundrissumgestaltung, Neubau
Architekt: Christopher Sitzler
Bauherr: privat
Bausumme: ca. 200.000 €

ABZ Siedlung im Glattpark, Zürich
LP 1-8
Wohnungsbau mit Gewerbeanteil im EG, Neubau
Architekt: Mitarbeit als Projektarchitekt pool Architekten
Bauherr: Allgemeine Baugenossenschaft Zürich
Totalunternehmer: HRS Real Estate AG
Bausumme: ca. 100 Mio € CFH

Quartier Heidestraße Gewerbegebiet, Berlin
LP 1-4
Gewerbebau Büro, Neubau
Architekt: Mitarbeit als Projektarchitekt EM2N Architekten
Bauherr: Taurecon Real Estate GmbH
Projektsteuerung: Drees & Sommer SE
Bausumme: ca. 130 Mio €, ca. 117 m2 Geschossfläche

Haus am Wannsee, Berlin
032SAN \ 2022
Ausbau eines Einfamilienhauses
Architekt: Christopher Sitzler
Bauherr: privat
Bausumme: ca. 50.000 €

Quartier Heidestraße Mischgebiet 3.1, Berlin
LP 1-3
Wohnungsbau mit Gewerbeanteil, Neubau
Architekt: Mitarbeit als Projektarchitekt Robertneun Architekten
Bauherr: Taurecon Real Estate GmbH
Projektsteuerung: Drees & Sommer SE
Bausumme: ca. 50 Mio €, ca. 290 Wohnungen & 5 Gewerbeeinheiten mit je 1.000 m2
1/4
Whg. Hermannplatz, Berlin
006URB \ 2020
Wohnungsumbau, Altbau
Architekt: Christopher Sitzler
Bauherr: privat
Bausumme: ca. 60.000 €





















































































